庭前花开花落,慢步江边鱼跃鱼乐,想必是不少人心中的归属,如果您也是这样想的,那么本期案例主角——由豪利打造的嘉陵江边2000平米美式柚木豪宅,将带给您非凡极致家的满足感。
转载微信公众号:源松营造
私人豪宅

嘉陵江水此东流,望喜楼中忆阆州。
若到阆中还赴海,阆州应更有高楼。
千里嘉陵江水色,含烟带月碧于蓝。
摘自:唐 李商隐
项目地处重庆嘉陵江边,总面积2000平米,共四层。设计委托人希望呈现多元化的空间体验,以满足高品质的生活。空间以美式为基调,缔造出一个奢华大气的居所。

门厅

一层会客厅
会客厅位于一楼,设计以中轴线为基础有机地展开空间秩序,理性而不刻板。空间保留了传统风格的端庄大气,摈弃了繁杂与压抑,静谧的古堡灰、素简的雅士白、质朴的缅甸柚木、仿旧黄铜以及高定的艺术装置。简约大气的空间线条呈现出稳重优雅的气质,大理石地板与棕色柚木的结合,随性与大气同时尽情表现。
一层餐厅


设计充分考虑到室内与室外空间的交流,因势利导的设想,玲珑暖煦的阳光透过落地窗户照射入内,时刻感受大自然清新爽朗的气息,残照当窗,花影摇曳也不错过。不管是大的空间还是局部小细节,都体现人与自然的和谐。
负一层餐厅


地下一层保留原有空间的粗犷自然,别有洞天......愿岁月只停驻在此刻,剪一影烛光,共一场清梦。
女儿房
女儿房浅棕的一缕暖色,灰蓝的冷调,在空间中谱写着和谐的旋律。丝绸质感的床品、精致光滑的灯具,呈现生活别样的质感,彰显主人别致的追求。
主卧
主卧以棕色为空间的主调,墙面辅之小面积的白色,打破了原有色彩的单调沉闷,营造温馨随性的氛围。浅色真皮沙发的柔软,与深色实木大床的硬实搭配,为空间的质感构成了细致的平衡。



主卧休闲厅与书房

整个休闲空间的基调以英国HALO皮质沙发的精致演绎,木质茶几的温度,精致复古LIMTIS台灯的介入,空间中的每一个家具,每一盏灯饰,都是匠心巧制的精致艺术品。
花园别处,以木构实现了男主人梦寐以求的木屋梦,成为手捧一杯茗茶,手持一卷经书,一支禅香沉淀的精神家园,清风朗日似有意无意地遗留在各种言语文字,谱写最耀眼的华章。
平面图
负一层平面图
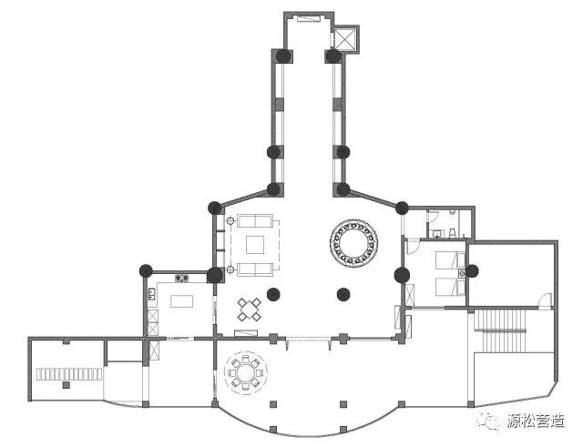
一层平面图
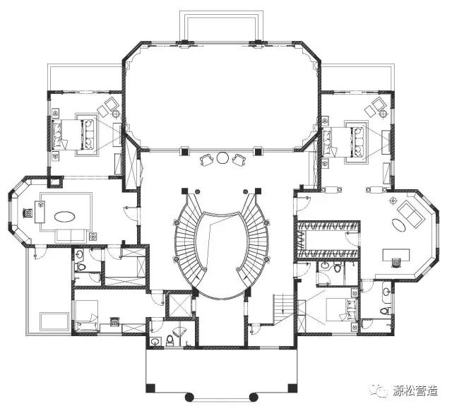
二层平面图
三层平面图
项目名称:佰富高尔夫别墅
项目地址:中国 重庆
项目面积:2000㎡
设计机构:源松营造空间设计
项目主创:潘侨 辜晋
设计团队:熊峰 陈瑞
软装设计:张琬霖
项目摄影:张骑麟
注:本文木制品由豪利制造,经源松营造授权转载。如果您喜欢这篇文章,欢迎您点赞或者分享。